Product code
CS838DE4Thông tin Bồn cầu TOTO hai khối CS838DE4
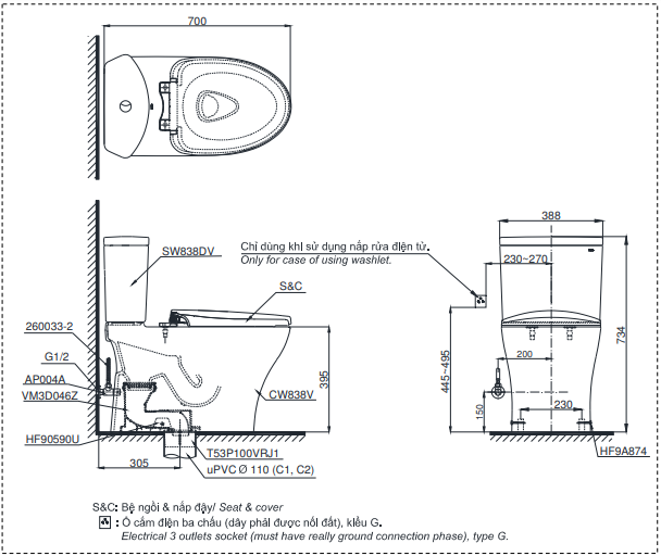
Kích thước: 700D x 388W x 734H mm
Màu sắc: Trắng
Hệ thống xả: Tornado
Lượng nước xả: 4.5L/3L
Thiết kế: Thân dài, thân kín
Tâm xả: 305 mm
Áp lực nước: 0.05 ~ 0.70 MPa
Lưu ý: Bao gồm bích nối sàn, van dừng
Tính năng bồn cầu TOTO hai khối CS838DE4
• Men sứ chống dính, chống bám bẩn CEFIONTECT
• Hệ thống xả Tornado siêu mạnh, siêu êm, tiết kiệm nước
• Tích hợp vòi rửa nước lạnh với chức năng rửa sau
Bản vẽ kỹ thuật bồn cầu TOTO hai khối CS838DE4

 
  
 


 
				 
				 
				 
				 
				 
				 
				 
				
Đánh giá
Chưa có đánh giá nào.